العودة   منتدى مقاطعة > مجتمع مقاطعة التفاعلي > مناقشات المستهلك > منتج ألماني يوفر 40% من تكلفة تشييد المجمعات السكنية من دون أساسات أسمنتية

موضوع مغلق
 
أدوات الموضوع إبحث في الموضوع انواع عرض الموضوع
قديم 23-05-2008, 02:55 AM   #21
eng_semo
مقاطع جديد

 
رقـم العضويــة: 7658
تاريخ التسجيل: Jan 2008
المشـــاركـات: 40

افتراضي

اقتباس:
المشاركة الأصلية كتبت بواسطة عاصمي مشاهدة المشاركة
اتمنى الرد
الشركة الأن تحاول الحصول على تصاريح لمزاولة العمل في السعودية .. والشركة الان موجودة في الإمارات ,,, تقدر تراسلهم إذا كنت جاد في هذا النوع من البناء .
eng_semo غير متواجد حالياً  
قديم 24-05-2008, 12:53 AM   #22
عاصمي
مقاطع

 
رقـم العضويــة: 3815
تاريخ التسجيل: Aug 2007
المشـــاركـات: 107

افتراضي

eng_semo

الف شكر لأهتمامك

___________________________

عاصمي غير متواجد حالياً  
قديم 14-06-2008, 09:52 PM   #23
abuhisham
الإدارة

 
رقـم العضويــة: 94
تاريخ التسجيل: Aug 2007
مــكان الإقامـة: جده, السعودية
المشـــاركـات: 17,549
Twitter

افتراضي


المصدر جريدة الرياض العدد 5314

العنوان (شركة المانية تتبني 4000 وحدة سكنية من الواح انوفيدا في السعودية)

و اللي ماخذ الوكاله البلطان ( خالد بن سلطان )

مشاركة بين (البلطان + مكة قروب + انوفيدا الالمانية)

abuhisham غير متواجد حالياً  
قديم 29-12-2008, 02:52 PM   #24
Saudi Mqataa
إعلامي المنتدى

 
رقـم العضويــة: 4093
تاريخ التسجيل: Aug 2007
المشـــاركـات: 2,362

افتراضي

وجدت المقابله ب الايميل..ولاعادة طرح الموضوع..




كل واحد يخزن الموقع عنده ...





ويشوفه بعدين ..



الاسم:	2.jpg
المشاهدات: 743
الحجم:	8.1 كيلوبايت
الاسم:	1.jpg
المشاهدات: 696
الحجم:	9.7 كيلوبايت


وائل الموجي يشرح هذه التقنية للزميل عبد اللطيف العتيبي









فله بسعر 100.000 ريال فقط


تتيح البناء الرخيص والقوي والسريع للمنازل والمباني والمكاتب والمخازن


مصنعة من مواد مركّبة تستخدم في قطاع الطائرات والقطاع البحري


تتيح تركيب منازل تبلغ مساحتها 35 أو 65 أو 420 متر مربع خلال 1 او 4 أو 10 أيام على الترتيب









عازلة للماء ، ومقاومة للأعصاير، ولا تحتاج إلى تركيب الأساسات أو الأسقف





جميع المعلومات تجدونها على هذا الرابط :
















الاسم:	3.jpg
المشاهدات: 713
الحجم:	38.7 كيلوبايت


الاسم:	4.jpg
المشاهدات: 685
الحجم:	38.2 كيلوبايت


اضغط على الصورة لعرض أكبر

الاسم:	5.jpg
المشاهدات:	751
الحجم:	31.5 كيلوبايت
الرقم:	2166


الاسم:	6.jpg
المشاهدات: 834
الحجم:	44.8 كيلوبايت

الاسم:	7.jpg
المشاهدات: 672
الحجم:	29.0 كيلوبايت

الاسم:	8.jpg
المشاهدات: 748
الحجم:	37.0 كيلوبايت

























وهذا النوع من البناء دخل البحرين وتحديدآ فى منطقة المالكيه / صدد الجديدة قرب المجمع التجارى



الاسم:	9.jpg
المشاهدات: 840
الحجم:	37.5 كيلوبايت

___________________________

كلنا فداء للوطن







Saudi Mqataa غير متواجد حالياً  
قديم 29-12-2008, 03:38 PM   #25
جمرة غضا
التميمية
المراقب العام
 
الصورة الرمزية جمرة غضا
 
رقـم العضويــة: 715
تاريخ التسجيل: Aug 2007
مــكان الإقامـة: محفر تمر سكري
المشـــاركـات: 40,561
Twitter

افتراضي

باحد المنتديات الهندسية شفت لهم فرع بالاردن
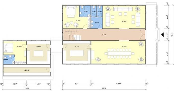
لكن هل فيه غير هذا تصميم.. احس انه غرف في كهف مافيه اماكن واسعه ومفتوحه اقصد بالدور الارضي
وجود الجدارن باي بناء يزيد من الكلفة +يضيق المكان ... فيه حلول افضل

___________________________

التميمية تويتر


للتواصل مع ادارة المقاطعة


جمرة غضا غير متواجد حالياً  
موضوع مغلق

مواقع النشر


ضوابط المشاركة
لا تستطيع إضافة مواضيع جديدة
لا تستطيع الرد على المواضيع
لا تستطيع إرفاق ملفات
لا تستطيع تعديل مشاركاتك

BB code متاحة
كود [IMG] متاحة
كود HTML معطلة

الانتقال السريع


الساعة الآن 04:08 AM.